Mehrfamilienhaus mit 6 Wohneinheiten
2 Rollstuhlgerechte Wohnung gem. §35(1) LBO

Balkon, Aufzug, Garagen, Stellplätze und unverbaubare Südausrichtung, "Effizienzhaus 55 EE", Kellerraum, Waschraum, Fahrradstellplätze und vieles mehr...

SÜD-OST Ansicht

NORD Ansicht

WEST Ansicht

WEST Draufsicht

Vogelperspektive

Helle Räume zum Verlieben und Leben

Unverbindliche Illustration

Die integrierte Küche lädt ein zum Kochen und Schlemmen.

Unverbindliche Illustration

 

Den Ausblick ins unverbaubare Grüne und die Stille genießen

Unverbindliche Illustration

Wohnung Nr. 1

Preis auf Anfrage !
Rollstuhlgerecht gem. §35 (1) LBO

Telefon: +49 7161 6562305
Mobil: +49 15234545303,
E-Mail: info@wohnbau-koese.de 
oder Kontaktformular

EG, WEST

2,5

Zimmer

1

BAD

71

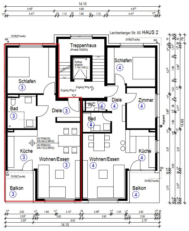
Grundriss 

Grundriss 

Grundriss UG

Ansicht Nord

Ansicht Süd

3D-Visualisierungen 

Interesse geweckt ? 
Melden Sie sich bei uns !

Wohnung Nr. 2

Preis auf Anfrage !

Telefon: +49 7161 6562305 ,
Mobil: +49 15234545303,
E-Mail: info@wohnbau-koese.de
oder Kontaktformular

EG, OST

3,5

ZIMMER

1

BAD

1

WC

72

Grundriss 

Grundriss 

Grundriss UG

Ansicht Nord

Ansicht Süd

3D-Visualisierung

Interesse geweckt ? 
Melden Sie sich bei uns !

Wohnung Nr. 3

Preis auf Anfrage !
Rollstuhlgerecht gem. §35 (1) LBO

Telefon: +49 7161 6562305 ,
Mobil: +49 15234545303,
E-Mail: info@wohnbau-koese.de
oder Kontaktformular

OG, WEST

2,5

Zimmer

1

BAD

71

Grundriss 

Grundriss 

Grundriss UG

Ansicht Nord

Ansicht Süd

3D-Visualisierungen 

Interesse geweckt ? 
Melden Sie sich bei uns !

Wohnung Nr. 4

Verkauft !

Telefon: +49 7161 6562305 ,
Mobil: +49 15234545303,
E-Mail: info@wohnbau-koese.de
oder Kontaktformular

OG, OST

3,5

ZIMMER

1

BAD

1

WC

72

Grundriss 

Grundriss 

Grundriss UG

Ansicht Nord

Ansicht Süd

3D-Visualisierung

Interesse geweckt ? 
Melden Sie sich bei uns !

Wohnung Nr. 5

Verkauft !
zusätzlicher Abstellraum Bühne

Telefon: +49 7161 6562305 ,
Mobil: +49 15234545303,
E-Mail: info@wohnbau-koese.de
oder Kontaktformular

DG, WEST

2,5

Zimmer

1

BAD

56

Grundriss DG

Grundriss DG

Grundriss Dachspitz Abstellraum

Grundriss UG

Ansicht Nord

Ansicht Süd

3D-Visualisierungen

Interesse geweckt ? 
Melden Sie sich bei uns !

Wohnung Nr. 6

Preis auf Anfrage !
Maisonettewohnung

Telefon: +49 7161 6562305 ,
Mobil: +49 15234545303,
E-Mail: info@wohnbau-koese.de
oder Kontaktformular

DG + DS, OST

3,5

ZIMMER

2

BAD

2

WC

86

Grundriss DG

Grundriss DG

Grundriss Dachspitz

Grundriss Dachspitz

Grundriss UG

Ansicht Nord

Ansicht Süd

3D-Visualisierungen

Interesse geweckt ? 
Melden Sie sich bei uns !

Wir benötigen Ihre Zustimmung zum Laden der Übersetzungen

Wir nutzen einen Drittanbieter-Service, um den Inhalt der Website zu übersetzen, der möglicherweise Daten über Ihre Aktivitäten sammelt. Bitte prüfen Sie die Details und akzeptieren Sie den Dienst, um die Übersetzungen zu sehen.